4.3.1 餐馆、快餐店和食堂的厨房区域可根据使用功能选择设置下列各部分:
1 主食加工区(间)——包括主食制作和主食热加工区(间);
2 副食加工区(间)——包括副食粗加工、副食细加工、副食热加工区(间)及风味餐馆的特殊加工间;
3 厨房专间——包括冷荤间、生食海鲜间、裱花间等,厨房专间应单独设置隔间;
4 备餐区(间)——包括主食备餐、副食备餐区(间)、食品留样区(间);
5 餐用具洗涤消毒间与餐用具存放区(间),餐用具洗涤消毒间应单独设置。
4.3.2 饮品店的厨房区域可根据经营性质选择设置下列各部分:
1 加工区(间)——包括原料调配、热加工、冷食制作、其他制作区(间)及冷藏场所等,冷食制作应单独设置隔间;
2 冷、热饮料加工区(间)——包括原料研磨配制、饮料煮制、冷却和存放区(间)等;
3 点心、简餐等制作的房间内容可参照本标准第4.3.1条规定的有关部分;
4 餐用具洗涤消毒间应单独设置。
4.3.3 厨房区域应按原料进入、原料处理、主食加工、副食加工、备餐、成品供应、餐用具洗涤消毒及存放的工艺流程合理布局,食品加工处理流程应为生进熟出单一流向,并应符合下列规定:
1 副食粗加工应分设蔬菜、肉禽、水产工作台和清洗池,粗加工后的原料送入细加工区不应反流;
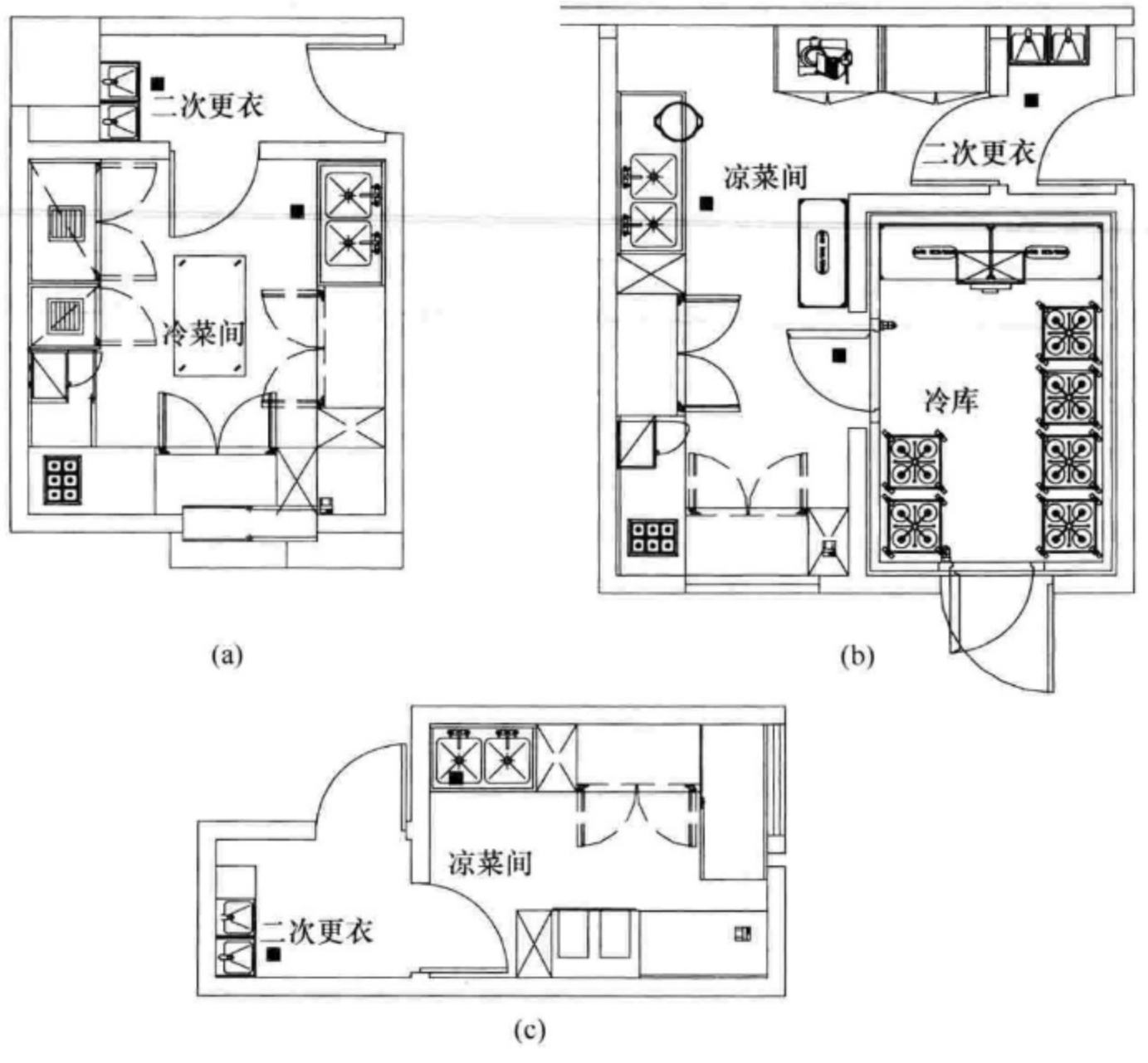
2 冷荤成品、生食海鲜、裱花蛋糕等应在厨房专间内拼配,在厨房专间入口处应设置有洗手、消毒、更衣设施的通过式预进间;
3 垂直运输的食梯应原料、成品分设。
4.3.4 使用半成品加工的饮食建筑以及单纯经营火锅、烧烤等的餐馆,可在本标准第4.3.3条的基础上根据实际情况简化厨房的工艺流程。使用外部供应预包装的成品冷荤、生食海鲜、裱花蛋糕等可不设置厨房专间。
4.3.5 厨房区域各类加工制作场所的室内净高不宜低于2.5m。
4.3.6 厨房区域各类加工间的工作台边或设备边之间的净距应符合食品安全操作规范和防火疏散宽度的要求。
4.3.7 厨房区域加工间天然采光时,其侧面采光窗洞口面积不宜小于地面面积的1/6;自然通风时,通风开口面积不应小于地面面积的1/10。
4.3.8 厨房区域各加工场所的室内构造应符合下列规定:
1 楼地面应采用无毒、无异味、不易积垢、不渗水、易清洗、耐磨损的材料;
2 楼地面应处理好防水、排水,排水沟内阴角宜采用圆弧形;
3 楼地面不宜设置台阶;
4 墙面、隔断及工作台、水池等设施均应采用无毒、无异味、不透水、易清洁的材料,各阴角宜做成曲率半径为3cm以上的弧形;
5 厨房专间、备餐区等清洁操作区内不得设置排水明沟,地漏应能防止浊气逸出;
6 顶棚应选用无毒、无异味、不吸水、表面光洁、耐腐蚀、耐湿的材料,水蒸气较多的房间顶棚宜有适当坡度,减少凝结水滴落;
7 粗加工区(间)、细加工区(间)、餐用具洗消间、厨房专间等应采用光滑、不吸水、耐用和易清洗材料墙面。
4.3.9 厨房区域各加工区(间)内宜设置洗手设施;厨房区域应设拖布池和清扫工具存放空间,大型以上饮食建筑宜设置独立隔间。
4.3.10 厨房有明火的加工区应采用耐火极限不低于2.00h的防火隔墙与其他部位分隔,隔墙上的门、窗应采用乙级防火门、窗。
4.3.11 厨房有明火的加工区(间)上层有餐厅或其他用房时,其外墙开口上方应设置宽度不小于1.0m、长度不小于开口宽度的防火挑檐;或在建筑外墙上下层开口之间设置高度不小于1.2m的实体墙。
条文说明
4.3.1 厨房区域作为供应用餐区域的主要加工部位,由主食加工区(间)、副食加工区(间)、备餐区(间)、厨房专间、餐用具洗涤消毒间、餐用具存放区(间)等组成,而且主、副食的加工各有其操作顺序,又有各自的卫生要求,本标准对其组成内容明确规定,以免有所遗漏。
1 主食加工区(间)包括:米、面、杂粮等的清洗及做成半成品的制作区(间)和将制作好的半成品进行蒸、煮、烤、烙、炸等的热加工区(间)。
2 副食加工区(间)包括:对肉类的粗洗、剔骨、去皮、分块;对禽类的宰杀、拔毛、开膛、清洗;对鱼、虾、蚌类水产品的刮鳞、剪须、去壳、开膛、冲洗;对海产品的发泡冲洗;对蔬菜类择选、冲洗等的粗加工区(间)。
对于粗加工好的各种生食按照菜肴要求洗、切、称量、配好装盘送入细加工区(间)。其加工好的半成品部分送入热加工区(间)进行热加工,部分冷藏待用。
对于洗、切、配好的半成品菜肴,送至热加工区(间)加以调料,进行煎、炒、烹、炸、扒、焖、煮等,将生食做成熟菜供应用餐区域使用。
3 冷荤拼盘、生食海鲜、裱花蛋糕极易受细菌污染,所以要求厨房专间单独设置。冷荤又分制作与拼配两部分,制作属于副食加工。
副食加工还包括风味餐厅的特殊加工间,如烤鸭间、烤肉间等。
4 备餐区(间)包括:主、副食备餐,可以单独设置房间,也可以结合售饭口设置。在备餐区应考虑食品留样的空间。
4.3.2 饮品店的厨房区域是饮品店中供应用餐区域的加工部位,由加工区(间)、餐用具洗涤消毒间、餐用具存放区(间)、付货处等部分组成。由于饮品店种类繁多,加工制作区(间)的内容也不一致,主要分以下几种:
1 加工区(间)包括:原料调配并煮成浆;进行冰激凌、冰棒、冰点心等冷食制作;装冰激凌的蛋托等其他项目的制作和包装加工好的食品冷藏。
2 饮料加工区(间)包括:原料配制,热饮料煮制,冷饮料的冷却、存放等。
3 各种中西糕点、甜咸小吃、简餐等的制作间,分别与餐馆厨房主、副食加工区(间)的要求相同。
饮食制作加工并非包括上述全部内容,可视其经营项目及自加工能力适当增减制作内容。
4.3.3 本条为强制性条文。为了保证食品制作的卫生安全,强调厨房按主、副食的工艺流程布置与分隔加工区(间),并做到原料与成品、生食与熟食严格分开。副食粗加工间由于肉类、水产品较易带菌,故要求肉禽、水产的工作台和清洗池应分设,为了避免设计中出现副食粗、细加工混流现象,本条规定粗加工后的原料送入细加工区(间)不应反流。
为防止对冷荤、生食海鲜等的污染,切实保证其卫生条件,要求在厨房专间的入口处加设有洗手、消毒、更衣设施的通过式预进间(图1)。
当厨房区域与用餐区域不在同层而以食梯联系时,为了保证卫生要求,本条强调必须将食品的原料、成品分设。
4.3.4 使用半成品加工的饮食建筑以及单纯经营火锅、烧烤等的餐馆,厨房区域比本标准第4.3.1条的规定内容有所减少:使用半成品加工的饮食建筑可以省去副食粗加工甚至副食细加工的

空间以及主食制作的空间;单纯经营火锅、烧烤等的餐馆可以省去副食热加工、部分主食热加工的空间。因此,厨房区域可在本标准第4.3.3条的基础上根据实际情况简化厨房的工艺流程布局。
使用预包装的成品冷荤、生食海鲜、裱花蛋糕等主要指对预包装食品进行拆封、装盘、调味等简单加工后即供应消费者食用的,可不设置厨房专间,加工过程应在清洁操作区内进行。本条与食品药品安全管理部门的相关要求一致。
4.3.5 通常厨房区域的各加工场所按卫生要求分隔,每个区域或房间的面积不会很大,且对热加工间的通风作了特殊要求,无需很高的空间,原规范规定厨房的室内净高不应低于3.0m。实际调研发现,由于许多商业经营模式不断变化,餐饮建筑许多是小型商业网点、原有建筑改造项目或附建在商业或其他公建中的项目,厨房区域的净高很多不能达到3.0m的要求。现代厨房烹饪方式的改进,室内增设空调、加强通风,因此层高减小对室内空气的质量、人的感受影响不大。
《餐饮业和集体用餐配送单位卫生规范》(卫监督发[2005]260号)及《餐饮服务食品安全操作规范》(国食药监食[2011]395号)中对烹饪场所的高度要求也比原规范有所减小,因此本标准要求厨房区域各类加工制作场所的室内净高不宜低于2.5m。
4.3.6 原规范对厨房与饮食制作间内工作道路的最小净宽,通过实地调研并结合人体工学计算的数据,通常认为以下尺度比较适宜:单边操作无人通行时定为0.7m,如热加工间灶台边至后面置放台边净距0.7m,便于厨师回身放取食品、器具,单人操作,此尺寸也算方便;有人通行时1.2m,即一人操作一人通行的空间;双边操作,无人通行时1.2m,有人通行时定为1.5m。
现代厨房设备不断更新发展,许多先进的烹饪设备替代了原有的产品,也有很多厨房的设计和布局会充分考虑立体空间的利用、先进设备合理安放以及员工的有效传递效率。如连锁经营的肯德基、必胜客以及麦当劳餐厅的生产、加工模式是按单生产,全部流程基于方便员工的有效传递来完成,减少食品传递的环节和距离也可以提高效率,同时保证食品安全。部分餐饮企业认为厨房操作间工作道路的最小净宽有具体数据的规定会限制餐饮行业的发展,不适合作为行业推荐要求。
基于上述原因,条文中对厨房各加工间的工作台边或设备边的净距不作具体的数据规定,符合食品安全操作规范和防火疏散宽度的要求即可。
4.3.7 厨房区域为一般加工场所,不同于精加工场所对光线的要求,参考《建筑采光设计标准》GB 50033-2013中住宅厨房和工业建筑食品类车间的相关要求,同时参考《民用建筑设计通则》GB 50352-2005、《全国民用建筑工程设计技术措施》(2009版)的相关要求,规定天然采光、自然通风的加工间、侧面采光窗洞口面积不应小于地面面积的1/6,通风开口面积不应小于地面面积的1/10。
4.3.8 为保证厨房区域各制作间的卫生条件,对于室内各部位及固定设施表面均要求用材无毒、光滑、不易积灰、不渗水、耐擦洗。
厨房内运送食材、物品,给餐厅送餐等经常用到小推车,因此厨房地面不宜设置台阶,如有高差宜采用坡道的形式解决。
4.3.9 调查饮食建筑发现,厨房区域各加工区(间)内设置专门的洗手设施,会方便厨房工作人员使用,避免工作人员经常到洗菜池或其他烹饪用水池中洗手,因此提倡设置;卫生清扫是饮食建筑每天或即时应该进行的工作,在副食粗加工区等地面、操作台面易污染的区域,应设置专用于拖把、抹布等清洁工具、用具的清洗水池及这些工具的临时存放空间,其设置位置应保证不会污染食品及其加工制作过程。
4.3.10 本条依据《建筑设计防火规范》GB 50016-2014第6.2.3条第5款要求,除居住建筑中套内的厨房外,宿舍、公寓建筑中的公共厨房和其他建筑内的厨房应采用耐火极限不低于2.00h的防火隔墙与其他部位分隔,隔墙上的门、窗应采用乙级防火门、窗;确有困难时,可采用防火卷帘。可以在整个厨房区域设置防火隔墙,也可以在火灾危险性较大的有明火的热加工间范围内设置防火隔墙。
对于采用电加热的无明火的敞开式、明档类厨房可以不受此限制。
4.3.11 沿用原规范并参照《建筑设计防火规范》GB 50016-2014及《汽车库、修车库、停车场设计防火规范》GB 50067-2014对于外墙上、下层开口间的防火措施相关规定,增加了外墙上、下层开口间设置高度不小于1.2m实体墙的措施,避免了挑檐影响建筑立面。
实体墙和防火挑檐的耐火极限和燃烧性能,均不应低于相应耐火等级建筑外墙的要求。

